BILOCALE CURATO IN CONTESTO TRANQUILLO E RICERCATO
Foto immobile/Planimetrie
Caratteristiche immobile
Camere: 1
Bagni: 1
Riscaldamento: Autonomo
Tipo Riscaldamento: Radiatori
Combustibile Riscald.: GAS
40 MQ
52 MQ comm.
Stato immobile: Nuovo
Garage: SI
Classe ener.: C
Locali: 2
Balcone: SI
Terrazzo: SI
Arredamento: SI
Ascensore: SI
Condizionatore: SI
Piano: Primo
Totale piani: 3
Tot. unità presenti: 9
Anno costr.: 2002
Cucina: A vista
Spese condominiali: 50 €
Spese rata: Mensile
Esposizione:
Nord Est Sud Ovest
Porta Blindata
Allarme
Cancello Elettrico
VideoCitofono
Fibra Ottica
Accesso disabili
Presentazione
RICCIONE | ZONA ABISSINIA
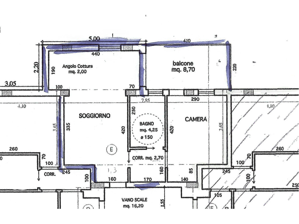
Appartamento | 2 Locali | 52 Mq comm.li
COMPOSIZIONE IMMOBILE:
Soggiorno cucina open space - Camera da letto matrimoniale - Bagno
ACCESSORI:
Terrazzo
Arredamento
FABBRICATO:
Costruzione del 2002
NOTE:
Proponiamo in vendita un luminoso bilocale situato al primo piano, servito da ascensore, all’interno di una piccola palazzina in zona Abissinia, una delle aree più ricercate di Riccione. La posizione è strategica: a pochi passi dal centro e dal mare, ma al tempo stesso tranquilla e riservata, ideale per chi desidera vivere lontano dal caos.
L’appartamento si presenta in buono stato manutentivo, accogliente e caratterizzato da ambienti ben distribuiti e particolarmente luminosi grazie ad un ampio terrazzo.
La soluzione si distingue per le ottime finiture interne ed è proposta in vendita completa di arredo, come da foto.
A completare la proprietà un comodo garage di 20 mq.
Una soluzione ideale per chi cerca un immobile pronto da vivere, in una posizione super servita e a pochi passi dal mare.
Info:
Giorgia Galassi | +39 334 826 7835 | g.galassi@immobiliarelh.it
--------------------------------------------------------------------------------------------------------------------------------------------------------------------------------------------
Nota bene: Le informazioni riportate nel presente annuncio sono da intendersi indicative e non costituiscono elemento contrattuale.
Appartamento | 2 Locali | 52 Mq comm.li
COMPOSIZIONE IMMOBILE:
Soggiorno cucina open space - Camera da letto matrimoniale - Bagno
ACCESSORI:
Terrazzo
Arredamento
FABBRICATO:
Costruzione del 2002
NOTE:
Proponiamo in vendita un luminoso bilocale situato al primo piano, servito da ascensore, all’interno di una piccola palazzina in zona Abissinia, una delle aree più ricercate di Riccione. La posizione è strategica: a pochi passi dal centro e dal mare, ma al tempo stesso tranquilla e riservata, ideale per chi desidera vivere lontano dal caos.
L’appartamento si presenta in buono stato manutentivo, accogliente e caratterizzato da ambienti ben distribuiti e particolarmente luminosi grazie ad un ampio terrazzo.
La soluzione si distingue per le ottime finiture interne ed è proposta in vendita completa di arredo, come da foto.
A completare la proprietà un comodo garage di 20 mq.
Una soluzione ideale per chi cerca un immobile pronto da vivere, in una posizione super servita e a pochi passi dal mare.
Info:
Giorgia Galassi | +39 334 826 7835 | g.galassi@immobiliarelh.it
--------------------------------------------------------------------------------------------------------------------------------------------------------------------------------------------
Nota bene: Le informazioni riportate nel presente annuncio sono da intendersi indicative e non costituiscono elemento contrattuale.
Dove si trova?
Contatto e richiesta informazioni
Invia una richiesta all'agenzia
Agente di riferimento
Rosy Caroli
IM-1500
Autorizzo il trattamento dei miei dati personali in base art. 13 del reg. eu 679/2016